Boxx ADUs

Are you considering an ADU?

Boxx offers pre-designed, pre-engineered, and pre-configured ADU solutions to address the diverse living and space needs of homeowners.

We invite you to preview our designs.

Boxx ADU solutions adapt to a wide range of living situations. Whether you're looking to accommodate a hired caregiver, create a multi-generational living arrangement, or provide an entry-level home for your adult children or a tenant, a Boxx ADU seamlessly fulfills these needs.

The decision-making process of new construction can be overwhelming and we are here to make it easy! Our Boxx ADU design experts have selected materials based on the guiding principles of beauty, low maintenance, and energy efficiency. Our design team has streamlined the development process allowing homeowners to focus on customizing their new living space without getting bogged down in the minutiae of construction decisions.

Learn More
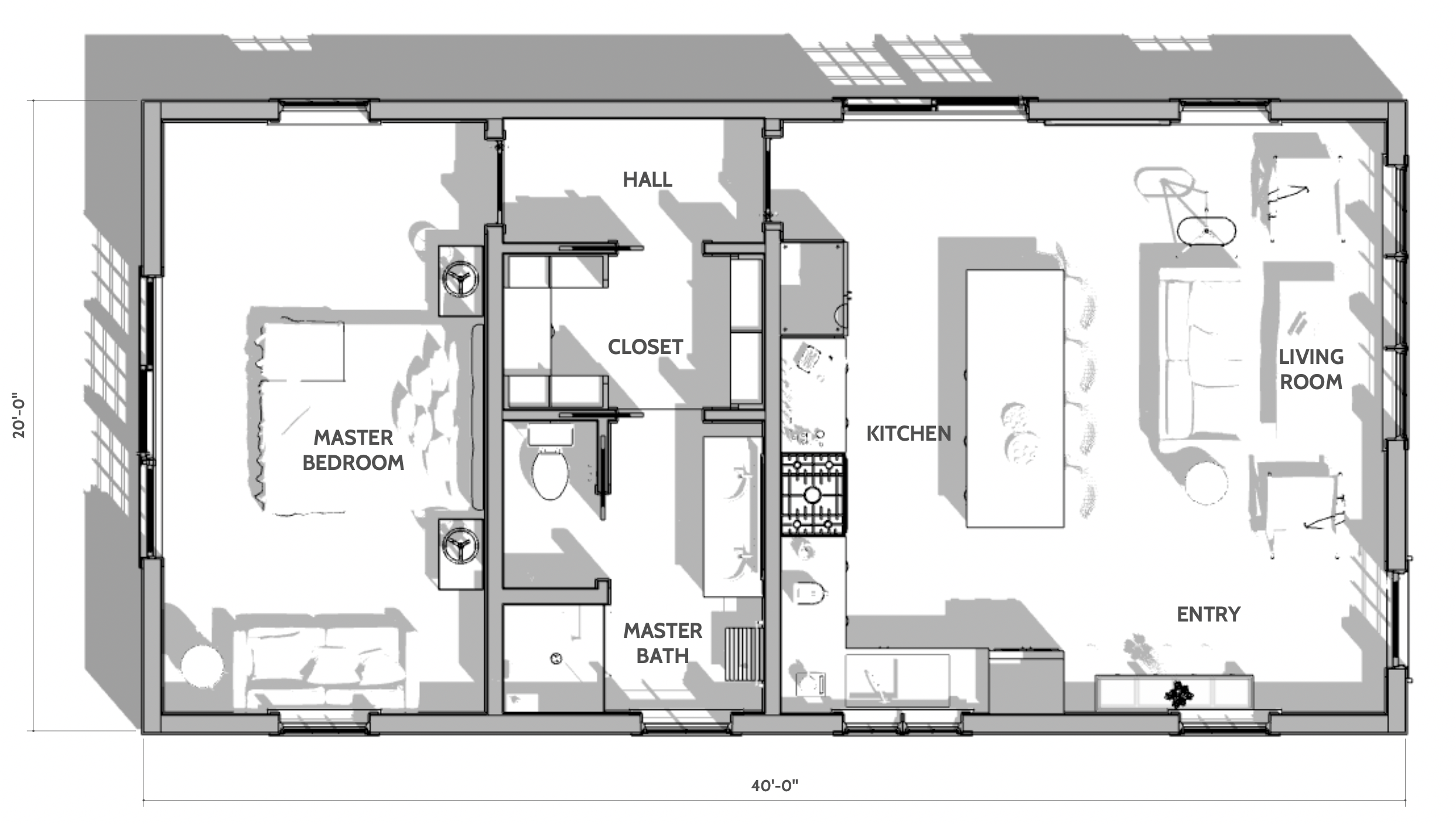
  • Whether you envision a cozy single-level retreat or a multi-story dwelling, our Boxx design experts will work with you to ensure that your ADU seamlessly integrates with your primary home and lifestyle. You can choose between one or two floors, with configurations ranging from 2-3 bedrooms and 1 to 2.5 bathrooms.

    What sets Boxx ADU apart is the meticulous attention to detail and the commitment to delivering a seamless experience. The pre-engineered and pre-designed approach ensures that each Boxx ADU is tailored to your specific needs and speeds up the process because our ADU designs already comply with local area ordinances. Our focus on quality materials and construction methods guarantees a beautiful and energy-efficient living space.

  • • Built from prefabricated structural insulated panels (SIPs) framework

    • Maintenance-free exterior siding/cladding

    • Contemporary low maintenance eco-friendly materials used throughout

    • A variety of interior and exterior finishes to choose from

    • Energy-efficient HVAC system

    • Cable-ready

    • Energy-efficient LED lighting

    • Lockable doors and windows

    • Patio doors come with screens to enhance your enjoyment when you want some fresh air

    • Integrated deck

    • Exterior LED deck lighting

  • Standard Specifications:

    • Windows and doors from Pella

    • Kitchen and bath fixtures from Kohler®

    • Cabinets from Form®▪Wood flooring from Stuga

    • Tile for bath and backsplash from Daltile®

    • Light fixtures from Barn Light Electric Company®

    • Recessed lighting from Halo®

    • Appliances from Bosch©

    • HVAC from Mitsubishi

    • Tankless water heaters from Rheem™

    Structure:

    • Structural Insulated Panels (SIPs) for exterior walls and roof (optional floor SIPs)

    • Engineered floor systems with open-web trusses and AdvanTech™ subfloor

    Optional:

    • Solar roof and battery storage from Tesla

    • Beadboard wall paneling from Nantucket Beadboard®

    • Prefabricated insulated foundation from Superior Walls

  • Base Price for Boxx ADU is approximately $300-$400 per square foot for budgeting purposes. The final budget will be determined upon completion of your design and based on local contracting and labor costs.

    Boxx can be the general contractor if your project is within a 90-mile radius of Fairfield County, CT.

WANT TO LEARN MORE?

REQUEST A SET OF PLANS TODAY.

 Call or email us now.